
三口之家,132㎡的空间调入木纹与线板,随着单层纱帘筛落日光,为家宅挹注柔光,而深褐原木质感家具则在灰蓝底蕴中,成为一抹令人难以忽视的点缀,让屋龄10年的房子,成功改造为带有美式乡村风的现代住所。
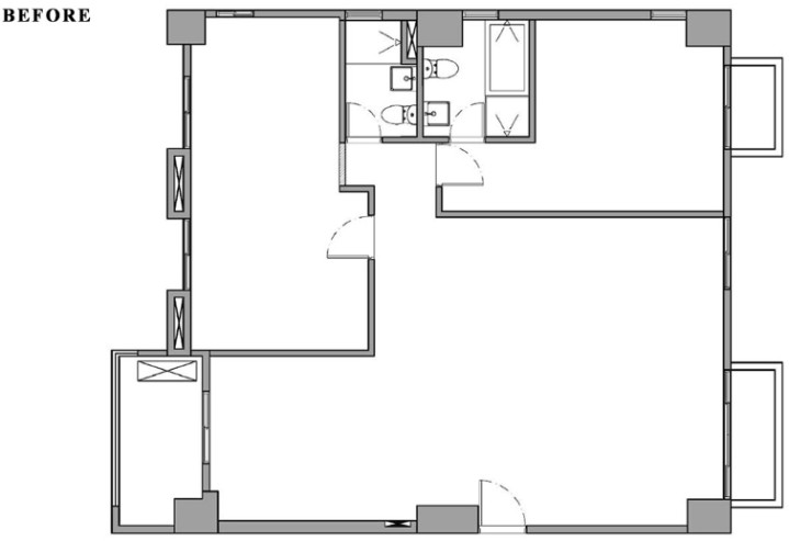
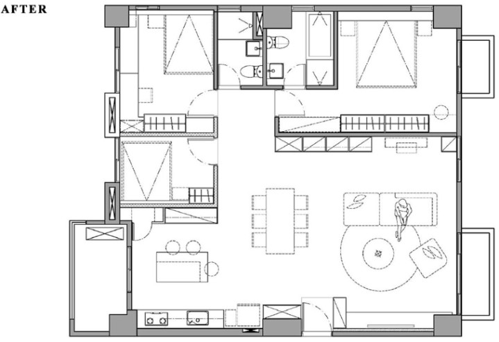
户型图

使用面积132㎡,屋主企盼能一改过去略显窄仄的厨房并加入中岛,一来可作为居家制作甜点的地方,二来也因缩小相邻次卧的面积,在中岛两侧让渡出足够宽度的走道,型塑出可接待亲友在此小聚的场域。

秉持完善运用空间,不浪费、亦不为做设计而设计的初衷,依循屋主喜好、兴趣与生活习惯,适度调整公私领域的比例,缩小次卧、放大餐厨,更符合屋主一家三口现下的生活需求,并预先设想好家中每一物件的归放处,完备简净利落又不占据过多体积的收纳哲学。
入户


入户前后对比,变化还是很大的。改造后不论是实用性还是收纳都得到了很大的改善,整体氛围感也好很多。进门以地砖划出一方落尘空间,组合式的木作定制设计,提供收纳也有了换鞋凳。新房没有独立玄关的,可以参考此设计。
客厅

客厅空间开阔,整体氛围感也很松弛。没有过多的修饰,即便是大梁依旧如此,以条灯装饰淡化压迫感。开阔的格局,以沙发作为空间轴心,打造自由循环的回字形动线。

通透的格局,打破原有窄仄的餐厨空间印象。各个功能区,通透吊顶的设计以达到视觉隔断的效果。木色和柔白色调的搭配,加上通透的空间,松弛氛围感直接拉满。

沙发后方定义为弹性多功能区,规划大面开放式木质书墙,这里可以是书房、练琴区,也可以是屋主其它兴趣,如:缝纫、绘画等的区域,时常洋溢书香与悦耳琴音,在灰系墙面挂放收藏画作的衬托下,增添艺术韵味。餐区垂落而下的典雅吊灯,亦绽亮雅致光氛,烘托温暖意象。
厨房

满足屋主诉求的中岛厨房,通过调整次卧空间比例实现。仪式感十足的中岛台,搭配足够多的储物空间,同时还有自由循环的回字形动线,整体一点不拥挤。
主卧

主卧柔白的空间中,铺叙灰蓝色调做床头背景,为低彩度的空间注入静谧气息。取消了床头柜的设定,床头推出一定尺度,打造置物平台。床头紧挨落地窗一侧,有一道窗户,改为活动式调光帘,色调与背景墙保持一致,整体更统一。

床尾设定为收纳和梳妆区,定制一面落地衣柜,可收纳屋主各式各样的衣物。灰色线板门设计,整体统一耐看。梳妆区规划在角落,不影响整体美观,简易梳妆台搭配古朴感藤质单椅,实用不突兀。
次卧


压缩空间比例后的次卧,空间稍显局促一些。整体定制设计以达到空间利益最大化。床头简单设计,以暖色线灯烘托氛围,更有仪式感。
儿童房


儿童房轻盈的天空蓝搭配木色,洋溢着轻快活泼的气息。临窗设计卧榻和书桌,将空间利用合理化,提高日常使用舒适性。
启盈优配提示:文章来自网络,不代表本站观点。